- Інтернет магазин замків
- •
- Каталог товарів ⭐
- •
- Дотягувачі дверей 🌟
- •
- Дотягувач для хвіртки LOCINOX Verticlose-2 сірий ⚡️
Дотягувач для хвіртки LOCINOX Verticlose-2 сірий
Артикул: 34336
В наявності
Знайшли дешевше?
Знизимо ціну!
Доставка
Оплата
Бельгійський виробник LOCINOX є одним із лідерів серед розробників фурнітури для огорож та воріт. Вся продукція призначена спеціально для вуличного використання, тому виконується з компонентів найкращої якості.
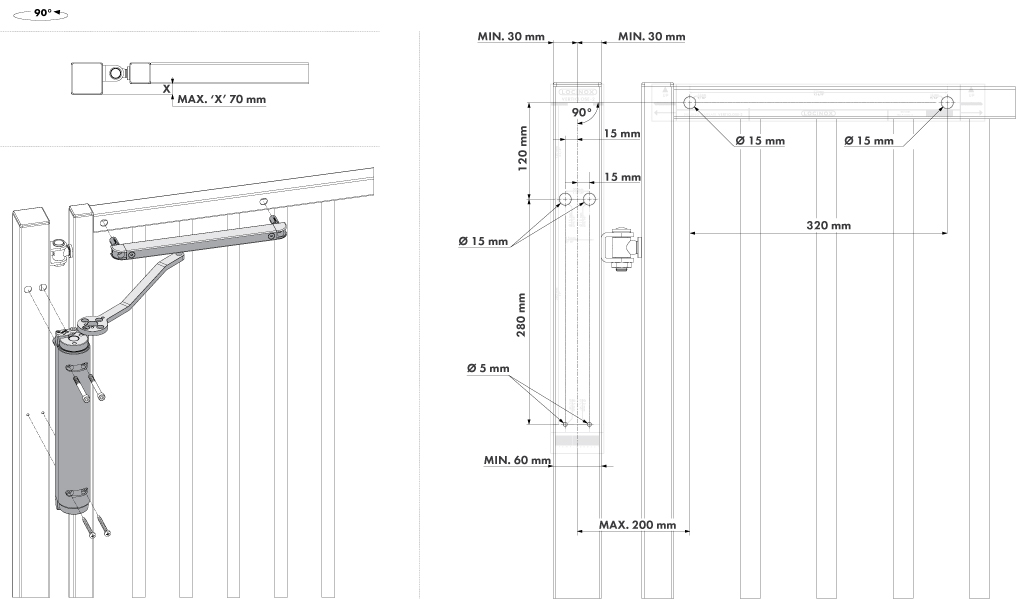
LOCINOX Verticlose-2 – це дотягувач, який встановлюється на хвіртки з кутом відкривання 90° і 180°. Підходить для ліво- та правосторонніх стулок вагою до 150 кг і шириною до 1500 мм. Призначений для використання при вуличних умовах (ступінь захисту IP69). Працює за будь-якої температури від -30°C до +70°C без додаткових налаштувань. Корпус механізму виготовлений з пресованого анодованого алюмінію. Механізм містить елементи із нержавіючої сталі. Дотягувач пиленепроникний та повністю стійкий до будь-якої погоди і ультрафіолетового випромінювання.
Швидкість закривання можна налаштовувати індивідуально шестигранним ключем. Є можливість активації фінального дотягування. Довготривалу роботу механізму гарантує обертове ущільнення. Сила закривання рівномірна на всі максимальні 180°. Не потребує використання стопора для обмеження кута відкривання.
LOCINOX Verticlose-2 виконаний в сучасному елегантному дизайні в сірому кольорі. Відмінно підійде до полотен будь-яких відтінків. Монтується максимально надійно завдяки запатентованій фіксації Quick-Fix. Оснащений заздалегідь встановленими кріпленнями (без зварювання) з нержавіючими сталевими болтами. Усі кріпильні скоби та шаблони для свердління йдуть в комплекті.

Дотягувач - це пристрій автоматичного закривання дверей. Тому, обираючи його, вам потрібно визначити який тип дотягувача вам потрібен.
Розрізняють їх по типу монтажу:
Накладні: кріпляться зверху на полотно, коробку або стіну.
Підлогові: підходять для дверей без коробки, наприклад, скляних. Монтуються знизу, з одного боку до стулки, з іншого - безпосередньо до підлоги.
Приховані: механізм знаходиться всередині полотна.
Після чого потрібно визначити ширину і вагу дверного полотна, з яким він буде працювати, та де він буде встановлений - на вулиці чи в приміщенні. Це є важливим при виборі. Також потрібно розуміти яка буде прохідність людей (іншими словами - як часто двері будуть відчинятись). Зрозуміло що чим більші ці значення, тим сильніший і надійніший дотягувач Вам потрібен.
Також слід розуміти які додаткові функції Вам потрібні. Окрім стандартного дотягування дверного полотна, більш дорожчі моделі мають функцію фіксації у відкритому положенні. Це створює додаткову зручність, адже можна зафіксувати двері у відчиненому стані. Можливі нюанси і стосовно місця встановлення. До прикладу, якщо заважає стіна, то потрібно ставити монтажну пластину або дотягувач із ковзною тягою, він виглядає набагато естетичніше, але ставлять його переважно на легкі двері.
Рекомендація: при виборі можливі й інші нюанси та індивідуальні особливості, тому радимо звернутися за порадою до наших фахівців, які підкажуть який саме дотягувач Вам найкраще підійде.
| Інші | ||
| Виробник | LOCINOX (Бельгія) | |
| Країна виробник | Бельгія | |
| Модель дотягувача | LOCINOX Verticlose-2 | |
| Тип товару | Дотягувач для хвіртки | |
| Спосіб монтажу | накладний | |
| Колір дотягувача | сірий | |
| Вага дверей | до 150 кг | |
| Фіксація відкритого положення | ні | |
| Гарантія | 36 місяців | |
В наявності
Знайшли дешевше?
Знизимо ціну!
Доставка
Оплата